搜索产品
返回
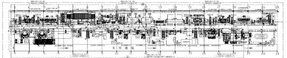
方案类型:双竖梁,桁架机械手
承载能力:单手可抓取50kg-300kg工件
产品种类:兼容8-9种产品,5L-15L曲轴,主要有潍柴、戴姆勒、康明斯、锡柴、卡特彼勒、斗山、沃尔沃、道依茨等品牌产品。
场地范围:长120m×宽21m
精益生产:单件流,100%先进先出。
产品全过程追溯系统:自动采集加工过程信息,自动拦截异常/漏工序工件;
天润制造执行系统(MES系统):自动化设备进行实时监控,OEE统计分析,生产数据实时监控,使生产过程数据透明化、科学化。
实施效果:效率提升32%,人员节省49%,质量稳定、数据透明。
